VNDL ARHITEKTUUR I HÕLJE

Varraku swimming hall I "HÕLJE" design competition 1st place

  • Author
    Susannah Kaul I Cristin Marii Titma I Timo Titma I Veiko Vahtrik
  • Location
    Varraku Street 14c, Lasnamäe district, Tallinn, Harju County
  • Area
    7211.00m²
  • Customer comment
    ARTICLE FROM THE CITY OF TALLINN WEBSITE

    “The long-awaited Varrak swimming pool will bring a new attraction to Lasnamäe, strengthen Tallinn’s sports infrastructure, and increase the capital’s capacity to host international sporting events. The swimming pool must provide top-level training conditions, promote physical activity among children and young people, and contribute to the public space of Lasnamäe – the authors of the design have clearly taken these principles into account in their work,” said Tallinn Mayor Jevgeni Ossinovski.

    According to Deputy Mayor for Municipal Assets Margot Roose, the outcome of the Lasnamäe swimming pool architectural competition is a prime example of how a well-designed public building can serve multiple purposes at once. “The planned swimming complex will enable high-quality training opportunities, support people’s exercise habits, and meet the needs of the local community. The building is designed to create cohesion with the surrounding urban space by connecting Tondiraba Park, the Ice Hall, and nearby residential areas into one functional environment. When developing the city, our goal is to create buildings that are sustainable, multifunctional, and serve the needs of people,” Roose said.

    The architectural competition sought a comprehensive spatial solution for the Lasnamäe swimming pool that would integrate the building and its surrounding area into a unified and functional environment.

    Julianna Jurtšenko, head of the jury and district elder of Lasnamäe, explained that the winning design stood out with its distinctive and creative architectural approach, which feels innovative, gives the swimming pool a strong identity, and fits perfectly between Tondiraba Park and the Ice Hall. “The spatial layout of the planned swimming facility is very well resolved, practical, and supports smooth user convenience. There is a logical connection between the Olympic-size pool and the supporting services operating in the building. The outdoor area is also simple and clean, properly tying the building together with the surroundings of the Ice Hall.”

IDEA AND INSPIRATION

When creating the concept design, the primary goal was to ensure that the building and its surrounding public space would be comfortably usable for the public, athletes, all visitors, and even casual passers-by. The architecture of the new swimming pool reflects the material character typical of the area, yet introduces a clearly distinctive formal language that makes it a recognizable landmark and creates a new spatial quality.

OUTDOOR SPACE
The design of the outdoor space takes into account the main movement directions and previously planned public space projects (Varraku Street promenade, Tondiraba Park, the plaza-promenade in front of the swimming pool). The main entrance of the swimming pool opens onto a representative square, forming a unified dispersal area together with the existing Ice Hall and the planned spa hotel, thereby creating logical connections between the three buildings.

The promenade between the buildings also functions as a flag square and recreational area, onto which the planned commercial spaces and café open. Temporary tents can be installed there for major sporting events. Sculptures celebrating local sports heroes—built, for example, under the public art requirement—are placed on the square in front of the building. The second entrance of the swimming pool opens onto the Varraku Street promenade and, similar to the main entrance, is sheltered by a cantilevered part of the building under which bicycle parking is located. The ground-floor façade of the building opens towards the representative square and the promenade, thereby creating an active and human-scale streetscape. Pedestrian and cyclist routes are straight, separated from each other, and without unnecessary detours. The main routes for light traffic and pedestrians run along the Varraku Street promenade, the north boundary of the site along the existing cycle path, and across the square between the swimming pool and the Ice Hall.

Car traffic and service access are designed to be as compact as possible. Parking will be provided in a parking house built in the next stage. Service vehicles can stop on the north side of the building, in the service yard, where waste management, goods delivery, and technical equipment maintenance are located. The promenade-square between the swimming pool and the Ice Hall is designed as a shared space, where service and emergency vehicles may move when necessary. New low and high greenery characteristic of the local climate is planned throughout the site. Along the Varraku Street façade, a row of rowan trees is planted to shade the swimming pool windows from direct sunlight. Diverse planting of grasses, low shrubs, and resilient urban greenery is used in the square between the swimming pool and the Ice Hall. Species-rich urban greenery creates favorable habitats for birds, pollinators, and other insects. Lawn areas in the square and promenade are reinforced with a honeycomb grid to ensure durability and easy maintenance.

ARCHITECTURE
The building façade features two main materials: glass and concrete. Variety in the shape and distance of the prefabricated concrete panels from the wall adds a playful effect. The façade uses concrete panels arranged as a wavelike shell, inspired by the apparent lightness of water. The panels are thin and seemingly lightweight, although concrete is a heavy material—similar to the paradox of water itself.

The wavelike concrete shell follows a continuous rhythm—each part of the wave represents a specific phase of a swimming stroke movement. “Catch – pull – push” is used as the conceptual basis for expressing this rhythmic wave motion. Window openings break the wave and allow daylight inside. From a distance, the glazed openings are almost invisible because the broken wave forms conceal them, creating the impression of a uniform façade.

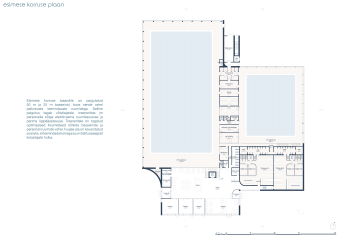
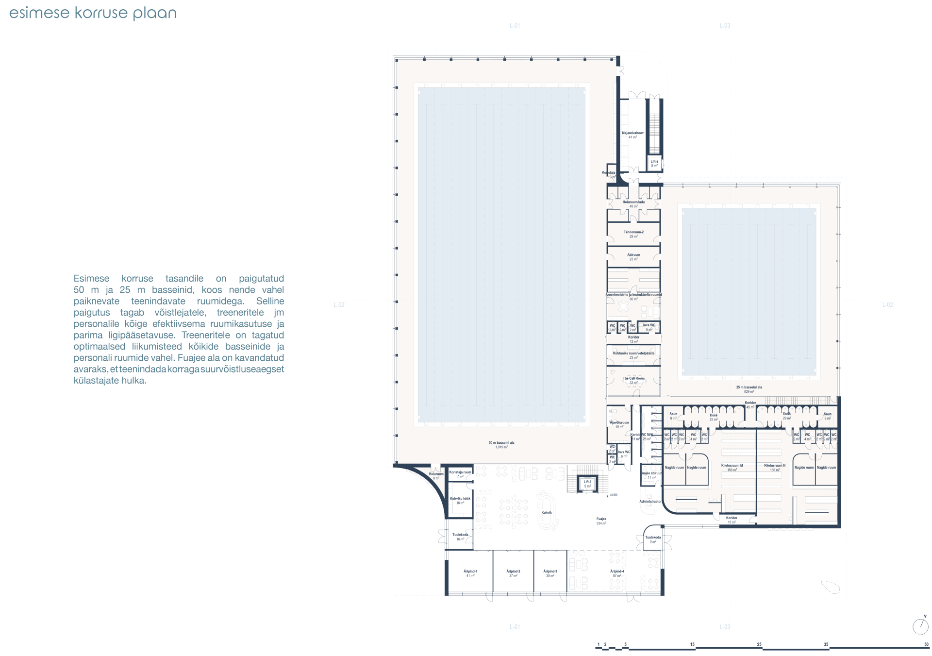
The result is a sustainable solution with an unusually long lifespan and minimal maintenance needs. The concrete façade reflects the material character typical of the area and creates a unified appearance with the existing Ice Hall. The designed building is above all a swimming complex intended for daily training and international competitions, incorporating all the functions listed in the brief. The most important components of the project are the 50 m and 25 m pools, along with separate beginner pools. The entire building is designed with the logistics of hosting international events in mind. The main entrance opens onto the new square alongside the entrances of the existing Ice Hall and the planned spa hotel.

The lobby is spacious enough to accommodate the large number of visitors during major competitions. Commercial spaces and a café opening onto the new square and the Varraku promenade form an integrated public area together with the lobby. From the main entrance, visitors proceed to the changing rooms and from there to the pool. On the ground floor, the 50 m and 25 m pools are placed alongside the service rooms located between them. This layout ensures the most efficient use of space for athletes, coaches, and other staff. Coaches have optimal movement paths between all pools and staff areas. During competitions, spectators move from the lobby up the stairs to the second floor, where the 520-seat grandstand overlooking the Olympic-size pool is located. If necessary, an additional 200 temporary seats can be added, making the pool a fully functional and unique facility in Estonia.

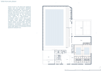
During major events, the northern evacuation staircase can also be used as an entrance. The beginner pools, with separate changing rooms for small children (and their guardians), are situated on the second floor, with a convenient direct connection to the planned spa hotel. There is also a direct connection from the beginner pool area to the main wet zone (the 50 m and 25 m pools). The second floor also includes a gym with a group training room and associated changing rooms.

Thanks to the open atrium and training spaces on the second floor, separate zones exclusively for athletes can be created during large competitions. The rooftop terrace on the second floor could also accommodate, for example, padel courts. The basement houses all technical rooms needed for the operation of the swimming complex, including chemical, generator, and electrical rooms, as well as large mechanical rooms for pool equipment. Access to the basement is via two elevators and one staircase.

The ground-floor changing rooms are designed for dual use—as a shelter. The rooms have no windows and feature reinforced wall and ceiling structures. There are two separate exits from the shelter. Under the Emergency Act coming into force at the beginning of 2026, all public buildings larger than 1,200 m² must include a shelter. Military threats are usually known in advance, allowing the government to instruct people to prepare for sheltering. In such a scenario, there are 72 hours to clear the shelter space of external objects (such as lockers in this project) and make it suitable for people. It must be equipped with some furniture so that elderly people and those with special needs can rest, and sufficient potable water must be stored.

INTERIOR ARCHITECTURE CONCEPT
The interior uses warm, cozy wooden tones to contrast with the concrete shell outside. Wood as the primary material creates a calming atmosphere. Structural wooden elements are left visible and treated with moisture-resistant finishes. The color palette consists of warm, earthy tones.

The lighting concept combines natural and artificial light. Natural light enters through the glass façade on the eastern side of the building, illuminating the space with maximum daylight while avoiding direct sunlight. This creates a bright Olympic pool area without exposing swimmers to glare. Artificial lighting includes both direct and indirect sources, making the space functional for both everyday training and competitions requiring special lighting solutions.

All materials used in the pool areas are waterproof or treated to prevent corrosion and early deterioration. The floors feature highly slip-resistant tiles, ensuring safe movement while remaining easy to clean. To prevent condensation in the humid pool environment, the air temperature is kept higher than the pool water temperature. Architectural elements are combined with effective technical solutions to ensure a comfortable indoor climate and user experience, while maintaining aesthetic quality inside and out. For acoustic comfort and a better working environment, structural panels and ribbing are used on the pool hall walls to break sound reflections and reduce reverberation time. Inclusive design and accessibility have been given special attention. The 50 m and 25 m pools and their service rooms are located at ground level with step-free access. The second floor is accessible by elevator compliant with accessibility standards. All doors are threshold-free. Accessible restrooms are available on both floors.

STRUCTURE
The primary load-bearing elements of the swimming complex are a network of wooden structures. The system of columns, beams, and load-bearing walls ensures efficient performance on all floors. Since structural columns cannot be placed inside the pool halls due to their size, and the spans are long, the roof is constructed using glued laminated timber trusses. The wavelike concrete façade panels are attached to load-bearing wooden columns using steel connectors. The wavelike panels are all produced using a single mold. Insulation is provided by concealed sandwich panels. The structural concept follows the principle of using each material where its properties are best utilized—for example, timber trusses, protected in the interior, provide long lifespan, warmth in the interior, and suitability for spanning large openings. Concrete is most effectively used in load-bearing internal walls and floor slabs, where it ensures high compressive strength and fire resistance.

ENERGY EFFICIENCY
Energy efficiency has been improved primarily through compactness and smart technical systems. Since swimming pool environments are among the most challenging in Nordic climates—with large temperature and humidity differences between indoors and outdoors—energy-efficient solutions are essential for building longevity. Special attention is given to the placement of technical systems: all pool equipment, including filters, heat exchangers, and pumps, is located in the basement directly beneath the pools. This minimizes heat loss through pipework and improves system efficiency. The planned systems allow maximum control over the indoor climate while reducing energy and maintenance costs. The flat roof is fully utilized and equipped with approximately 4,000 m² of solar panels, which cover most of the building’s electricity consumption with carbon-free energy. Additionally, rainwater collected via internal roof drains is reused for flushing toilets and other suitable sanitary fixtures.

ORDERED: ARCHITECTURE